Zum Mieten: Attraktive Räumlichkeiten zu leistbaren Preisen!
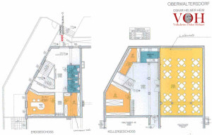
Das Volksheim Oskar Helmer ist auch in seiner neuem Form ein idealer Treffpunkt. Neben einem rund 100 m2 großen Saal bietet die Location eine Küche und moderne Sanitärräume.
Ob private Feiern (Geburtstag, Jubiläum, Hochzeitstag, und, und, und), ob Seminare und Tagungen, ob Gruppentreffen – das Volksheim Oskar Helmer ist immer ein passender Veranstaltungsort. Die günstigen Mietpreise werden sie überraschen. Auf Wunsch organisiert das Volksheim-Team auch gerne das Catering.
Lassen Sie sich unverbindlich für Ihre Veranstaltung ein individuelles Preisangebot legen! Dazu einfach ein Mail an m.raab62@gmx.at schicken oder +43 681 81582456 anrufen.
